Nieuw in verkoop:Steekterweg 15D, 2407 BD Alphen aan den Rijn - Foto
Nieuw in verkoop

Steekterweg 15D 2407 BD Alphen aan den Rijn € 645.000,- v.o.n.

  • Bouwgrond
  • 1.500 m² perceeloppervlakte
Landgoed Hooge Steekt

Beschrijving

In het buitengebied van Alphen aan den Rijn en tegen de grens van het naburige dorpje Zwammerdam bevindt zich een unieke locatie. Uniek vanwege de rust en het uitzicht, maar ook door de voorzieningen die zich op relatief korte afstand bevinden. Op het landgoed Hooge Steekt worden vijf vrijstaande woningen gebouwd, vormgegeven als een stijlvol ensemble. De woningen zijn onder architectuur ontworpen door Bloemen architecten en sluiten perfect aan bij het landelijke karakter van de omgeving. Het ensemble biedt privacy én een gevoel van samenhorigheid. U woont in een chic geheel, maar met uw eigen plek en uitzicht over de polder.

Elke kavel biedt volop ruimte voor een royale woning en een fraai aangelegde tuin. De situering van de kavels zorgt voor prachtige vergezichten over water en weilanden. De toegangsweg, parkeerplaatsen en groene zones worden als mandelig eigendom ingericht, wat betekent dat onderhoud gezamenlijk wordt verzorgd. Achter de kavels komt een zonnepark voor duurzame energieopwekking, eveneens in gezamenlijk eigendom. Per woning worden er tien zonnepanelen geplaatst om in de energiebehoefte te voorzien.

Voor meer informatie verwijzen wij u naar de projectwebsite: landgoedhoogesteekt.nl

Kaart

Kenmerken

Overdracht

Referentienummer
00112
Prijs
€ 645.000,- v.o.n.
Status
Nieuw in verkoop
Aanvaarding
In overleg
Aangeboden sinds
Vrijdag 23 januari 2026
Laatste wijziging
Maandag 9 februari 2026

Bouw

Type object
Bouwgrond
Soort bouw
Nieuwbouw

Oppervlaktes en inhoud

Perceeloppervlakte
1.500 m²

Kadastrale gegevens

Kadastrale aanduiding
Alphen aan Den Rijn G 1594
Perceeloppervlakte
1.500 m²
Eigendomsituatie
Eigen grond

Media

Foto's

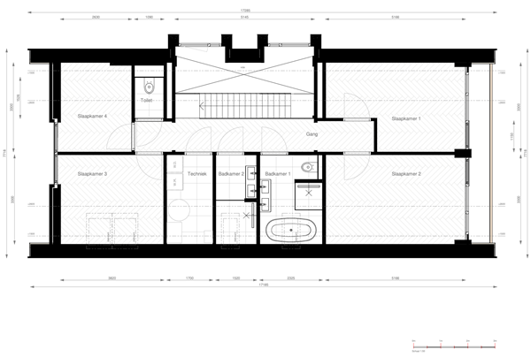
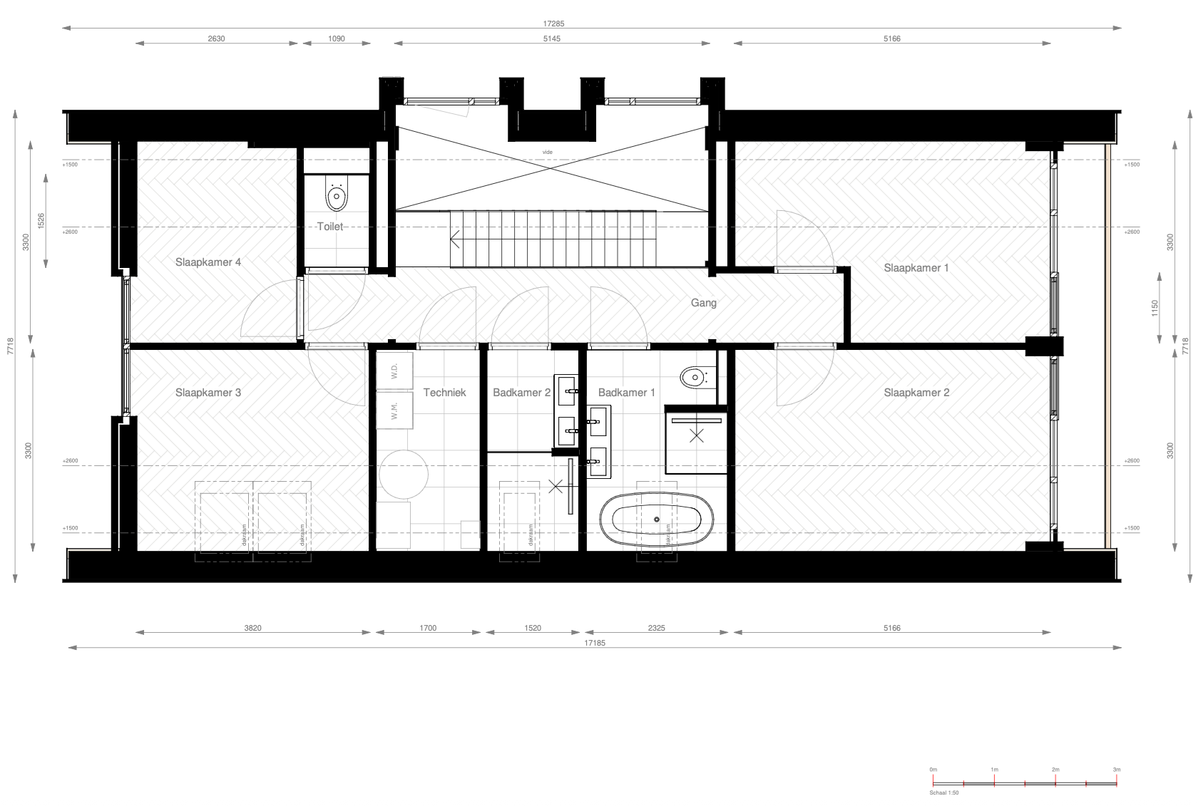
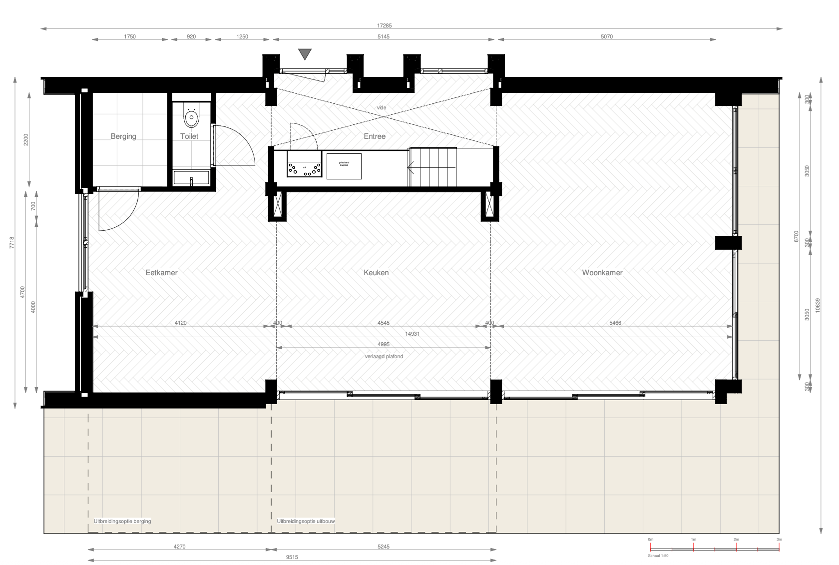
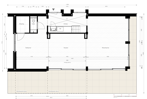
Plattegronden

Onderdeel van nieuwbouwproject Landgoed Hooge Steekt Landgoed Hooge Steekt